“配电箱设计提效50%,BOM快30%!” 听兴盛通工程师揭秘利驰SuperBox的真实体验!


湖北兴盛通电气设备有限公司成立于2007年,经过团队的长期努力奋斗,现已成为注册资本10180万、占地总面积55亩、年营业收入超过2亿元,拥有独立的生产厂房、 办公楼、宿舍楼、食堂以及娱乐室近35000平方米的现代化规模企业,现有营销、产品研发、技术工程师和生产员工等共计百余人且高速成长中。此外,公司与施耐德、ABB等国际企业开展合作,是一家集设备安装、电力工程设计、施工及服务于一体的国家高新技术企业。
👉兴盛通配电箱设计现状:
• 重复操作费时费力:一次图整理拷贝到图框重复手工操作,还需手动编辑每页图纸箱柜信息。
• 人为因素错误多:元件换型、人工清点元件易遗漏,耗时费力。
• 纯手动布置元件效率低下:人工清点元件数量以及查找元器件模型,并且易出现布局冗余或干涉问题,难以精准平衡电气安全、散热需求与空间利用率。
基于以上问题,兴盛通希望能够找到一款工具或产品可以从效率提升、质量保障、减少人为错误、流程整合等多个维度,促进公司在配电箱的投标、设计、采购、生产全流程的效率提升,增加在行业中的竞争力。

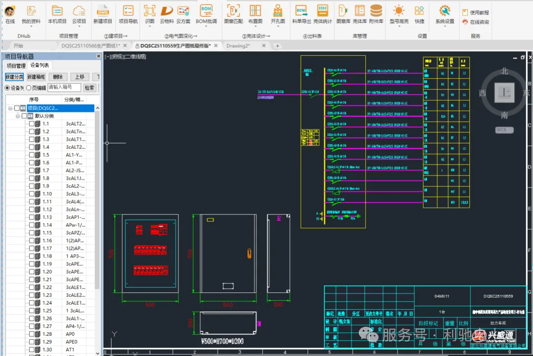
01、自动出图,
电气设计提效50%
传统配电箱项目,报价与设计以“上下流”方式的独立工作,在中标后,设计工程师拿甲方图自己手动改图、分图套图框、手工整理设计BOM,完成电气设计。使用SuperBox软件后,可实现智能识图提BOM、自动分图、自动套填图幅、标题栏信息,这个过程相比传统手工改图节约50%的时间!
02、图文联动换型,
设计BOM整理提效30%
传统CAD中换型,需依赖设计经验逐个查找、替换器件型号,图块文字还需手工处理,不仅操作效率低还容易遗漏,出现人工错误。现在使用SuperBox软件换型,只需在BOM汇总表从企业物料或利驰电小二选型快速替换,软件自动替换设计BOM表及图纸中设计型号,确保设计BOM及图纸型号一致性、准确性,一键输出设计BOM料单,快速导入ERP系统下料!

03、自动配图章布排,
箱体设计提效30%
SuperBox自带上万器件图章,配电箱常用品牌基本都能覆盖,一键匹配到元件图章,自动布排,沿用CAD操作习惯便捷调整布局,初步评估简单配电箱箱体设计节约30%时间。此外还提供企业壳体库、方案库等,支持企业内共享、统一企业设计数据及规则。


兴盛通电气 钱工分享:
该软件的器件换型功能相较于直接在CAD中进行替换更为便捷。CAD的查找替换功能对计算机资源占用较大,属性块需手动单独处理,操作过程既耗时又费力。此软件生成的排布图中元件数量准确,较人工计数更为可靠。其输出的BOM型号由电小二导出,与本库中的型号匹配度较高,导入系统更为高效。该软件生成壳体图的速度较快,可提升效率约30%。在二次操作较多的情况下,布排效果可进一步优化。
兴盛通电气 刘工分享:
通过这套工具我们实现了快速分图、自动套图框和更新标题栏,效率提升约30%。
换型时图纸能自动同步修改,比以往在CAD里手动查找替换省力不少,节省了近20%的时间。
图章匹配和调整也更方便,效率提高约30%,排布效果还有优化空间,期望后续继续提升。可以快速输出BOM并直接录入公司ERP系统,整体流程顺畅,节约了从设计到录入的时间。
详情联系dq123.com/wiki/detail/29


浙公网安备 33010602011771号