《诚清单》处理墙身大样图工程量


大家好,今天给大家讲解 诚清单在处理 “墙身大样图”工程量时的具体案例。
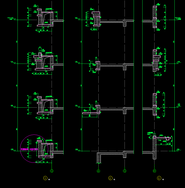
墙身大样图,是一种墙身剖面节点大样的表示方法,通常是自下而上,同一剖切部位的大样节点。通常有两种方法来处理,一种是图形算量、另外一种是手工计算。
采用图形算量的方法的优点是,通常无需关注构件之间的扣减关系与相互影响,板就用板画,墙就用墙画,定义好构件尺寸与标高画上去就行了,三维一展示,模型非常漂亮,也很有成就感。这个也是初学者最喜闻乐见的方法,说白了“依葫芦画瓢”就行,不需要动脑筋。那么缺点也非常明显,第一那就是对于相同构件或不同构件之间的工程量扣减关系不明确、第二由于施工工序造成的工程量影响也没有很好的把控(比如一次结构二次结构、主体与后浇带、单体与车库等等),第三构件定义绘制费时费力,层间复制时,一些构件的重叠提示处理起来也是非常繁琐,一不小心就会替换错误。第四在甲乙双方对模型的过程中,调整起来同样也是非常麻烦。
所以老预算员往往采用手工算量的方式来处理这些构件。

下面给大家展示一下手工计算稿,分节点、分楼层、分部位,思路清晰、部位明确、在对账过程中修改也非常方便。唯一不足之处在于如何快速高效的合并同类项的工程量,下面我来演示一下“诚清单”是如何处理这类问题的。




工程量表→分类表→导入→发至总表
导入之后,发至总表,就进行了合并同类项,并且保留了注释与说明,对于一些争议工程量,也可以复选框处理。
最后友情提醒,“诚清单”是一款完全免费开源的软件,以前是、现在是、将来也是!如何获取可以百度搜索。
好了,今天的内容就到这里,喜欢的小伙伴可以点赞、评论加转发,我们下期再见!

浙公网安备 33010602011771号