安装电气-强电
强电、弱电、低压、高压
低压:低于1KV属于低压,1--35属于中高压。35--220属于高压,220以上属于超高压。
配电柜一般据地安装--离地0.3,,,,配电箱一般离地1.5m
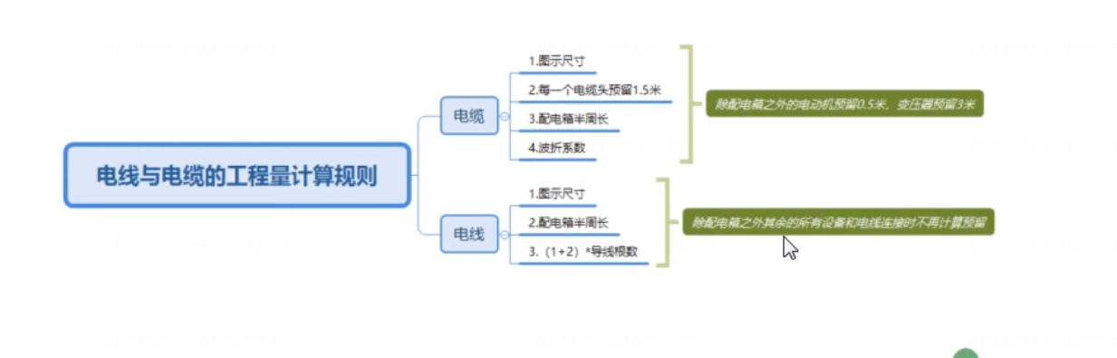
电缆头:电缆算中间头,250m算一个,终端头每一趟电缆算2个电缆头
计算路灯的时候,电缆计算到路灯基础就行,一般0.3左右,看结构建筑图
施工过程中注意事项:1.桥架是贴梁走,还是梁下100mm走 2.
电气分四个板块:
强电干线图(强电 电力 插电 干线 图):主要算电缆和配电箱
强电照明平面图:
应急照明
防雷接地
FC:暗敷设在地面内
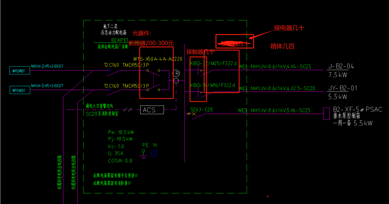
XF :消防配电箱,,,消防主要管的是电梯,消防的卷帘门,防火卷这些点都是属于强电
KVV:就是控制电缆,YJV电缆
KV:千伏
所有应急照明的配电箱都是由消防配电箱来管
电缆手孔井,
WDZ-0.45/0.75kV低烟无卤阻燃导线---是低烟无卤电线
NH-RVS-2x2.5-SC20 电线
NH-RVS-2*1.5 称为双绞线或 麻花线,买的时候就买一根
NH-BVR-2*1.5 BV叫电线,R是铜丝,所以需要乘以芯数
消防配电箱,应急照明配电箱



SC25是 穿焊接钢管,管径是25的 | | WC.CC表示沿墙敷设,到楼板后,楼板暗敷,,最后到AL的时候,在沿墙敷设
桥架一般在梁下100安装,梁高看结构图,一般在400到500mm(具体安装现场施工情况来看,是梁下100还是桥架贴梁走)
电力电缆:
所有的电缆和电线必须穿管,或者穿桥架,就是他不能裸着直接走,所以只要是有电缆、电线必须
考虑他的配管或者桥架
图说明:

2 指俩跟电缆,带22就是指 带钢带铠装的意思
(线缆总长+预留长度)*1.025
图说明:
电缆进入配电箱,预留宽加高,进入配电柜,预留2m,延长米都要乘以2.5%,进建筑物的还有预留2m。,现在就是算3和2,
注意:遇到箱子才会有终端头





电缆计算公式:


插座:
FC:地面敷设
WC:墙面敷设
CC:顶板敷设
SCE:吊顶内敷设
pc20:我们叫硬质塑料管
电梯控制箱:一般预料1.2m
屋内箱子尺寸:预算暂时按照380*250来计算

照明:
照明三根线:火线(连开关)、零线(接灯)、接地线(接灯)
开关:连接线(连接灯的)
看到0315,缺少部分,过俩天再看

接线箱
8304电话模块
8303输入模块
感烟吸顶竖直无所谓,不考虑


NH-RVS-2*1.5 称为双绞线或 麻花线,买的时候就买一根
NH-BVR-2*1.5 BV叫电线,R是铜丝,所以需要乘以芯数




浙公网安备 33010602011771号