Linux的系统分区
1 磁盘分区(也可称为系统分区)
磁盘分区是使用分区编辑器在磁盘上划分几个逻辑部分 碟片一旦划分成数个分区 不同类的文件与目录可以存储进不同的分区
简单化语言:把大的硬盘按照某种需求划分成小磁盘
***1.1分区的类型
主分区:最多只能有4个 1 2 3 4 只能给主分区使用
扩展分区:最多只能有1个
主分区加扩展分区最多有4个
不能写入数据 只能包含逻辑分区
逻辑分区

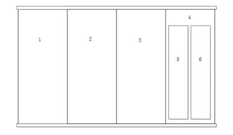
图片说明
1 2 3 是主分区
4是扩展分区 不能放入数据也不能格式化 唯一作用是包含上其他分区
5和6是扩展分区当中的逻辑分区 逻辑分区可以正常的格式化和显示数据
***1.2 格式化的概念
格式化(高级格式化) 又称为逻辑格式化 它是指根据用户选定的文件系统(如FAT16,FAT32,EXT4) 在磁盘的特定区域写入特定数据
在分区中划出一片用于存放文件分配表、目录表等用于文件管理的磁盘空间
格式化是为了写入文件系统 会把柜子划分成一个一个等大小的数据块 同时建立iNode 通过iNode(i节点号)唯一编号以方便查找文件 还要给没哟个分区起一个设备文件名 例如下表(Linux中所有的设备都是一个文件)

***1.3 分区设备文件名
设备文件名 后缀的1 代表硬盘当中的第一个分区
/dev/hda 1(IDE硬盘接口)
/dev/sda 1(SCSI硬盘接口,SATA硬盘接口)

/dev/sdb 的分区分成两个分区 不能有sdb3和sdb4 原因是 1 2 3 4 只能给主分区使用
***1.4 挂载: 通俗的来讲,挂载就是给每个分区分配挂载点 这个挂载点必须是空目录
必须分区
/ 分区
swap分区(也称作交换分区,内存2倍 不超过2GB)
/boot (启动分区,200MB)是最推荐的分区目录

浙公网安备 33010602011771号